КОМПЛЕКСНЫЕ ПОСТАВКИ ОБОРУДОВАНИЯ ДЛЯ ГАЗИФИКАЦИИ ПРЕДПРИЯТИЙ И КОТЕЛЬНЫЕ "ПОД КЛЮЧ"
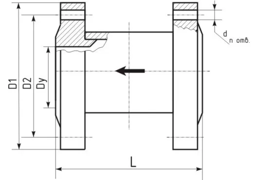
Клапаны термозапорные КТЗ ТУ 3742-001-89363468-2010 предназначены для автоматического перекрывания трубопровода, подводящего газ к бытовым и промышленным приборам в случае пожара.
Термозапорный клапан содержит корпус, в полости которого установлен подпружиненный запорный элемент, удерживаемый в открытом состоянии упором с легкоплавкой вставкой. При достижении температуры клапана в 90°C легкоплавкая вставка плавится, запорный элемент высвобождается и перекрывает поток газа. Клапан термозапорный является устройством разового срабатывания многократного использования (ремонтопригоден).

|
Условное обозначение клапана |
Параметры |
|||||||
|
Условный проход Ду |
Рабочее давление Рр, Мпа (кгс/см2) |
D1, мм |
D2, мм |
D, мм |
n |
L, мм |
Масса (кг) не более |
|
|
КТЗ-250-02-1,6(Ф) |
250 |
1,6(16) |
405 |
355 |
26 |
12 |
170 |
51,0 |
Клапаны термозапорные КТЗ ТУ 3742-001-89363468-2010 предназначены для автоматического перекрывания трубопровода, подводящего газ к бытовым и промышленным приборам в случае пожара.
Термозапорный клапан содержит корпус, в полости которого установлен подпружиненный запорный элемент, удерживаемый в открытом состоянии упором с легкоплавкой вставкой. При достижении температуры клапана в 90°C легкоплавкая вставка плавится, запорный элемент высвобождается и перекрывает поток газа. Клапан термозапорный является устройством разового срабатывания многократного использования (ремонтопригоден).

|
Условное обозначение клапана |
Параметры |
|||||||
|
Условный проход Ду |
Рабочее давление Рр, Мпа (кгс/см2) |
D1, мм |
D2, мм |
D, мм |
n |
L, мм |
Масса (кг) не более |
|
|
КТЗ-250-02-1,6(Ф) |
250 |
1,6(16) |
405 |
355 |
26 |
12 |
170 |
51,0 |
Клапаны термозапорные КТЗ ТУ 3742-001-89363468-2010 предназначены для автоматического перекрывания трубопровода, подводящего газ к бытовым и промышленным приборам в случае пожара.
Термозапорный клапан содержит корпус, в полости которого установлен подпружиненный запорный элемент, удерживаемый в открытом состоянии упором с легкоплавкой вставкой. При достижении температуры клапана в 90°C легкоплавкая вставка плавится, запорный элемент высвобождается и перекрывает поток газа. Клапан термозапорный является устройством разового срабатывания многократного использования (ремонтопригоден).
Оставьте заявку, и в ближайшее время с вами свяжется специалист, чтобы проконсультировать по всем интересующим вопросам.